وصف المنتجات
المحول الجاف من ثلاث مراحل هو نوع من المحولات التي لا تستخدم زيت التبريد. يستخدم الهواء أو الغازات الأخرى كطريقة تبريد ولديه خصائص بنية مضغوطة ، ولا زيت ، ولا تلوث ، ومقاومة جيدة للحريق. يشمل هيكلها الرئيسي لفائف أولية وثانوية ، جوهر حديدي (جوهر مغناطيسي) ، والذي يمكن استخدامه لتنظيم الجهد ، ومطابقة المعاوقة ، وعزل السلامة ، وما إلى ذلك في المعدات الكهربائية والدوائر اللاسلكية.
تحتوي المحولات من النوع الجاف على مجموعة واسعة من التطبيقات العملية ، والتي تستخدم غالبًا في المحطات الفرعية للتوزيع والمصانع والمناجم والأماكن الأخرى التي تتطلب تحويل الجهد. نظرًا لخصائصه الخالية من النفط وخالية من التلوث ، يمكن أن تعمل بشكل ثابت لفترة طويلة في الظروف البيئية القاسية. وفي الوقت نفسه ، فإنه يحتوي على استهلاك منخفض للطاقة ، وكفاءة عالية ، وقدرات جيدة لمكافحة التدخل وقدرات الحمل الزائد ، والتي يمكن أن تتكيف مع بيئات الطاقة المعقدة والمتغيرة.
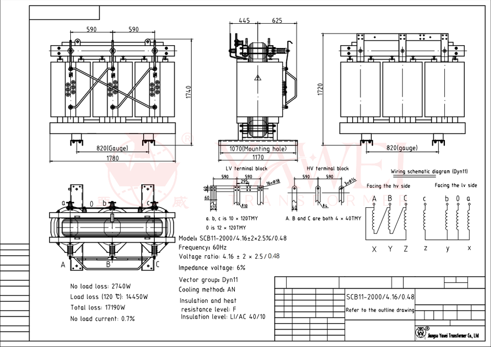
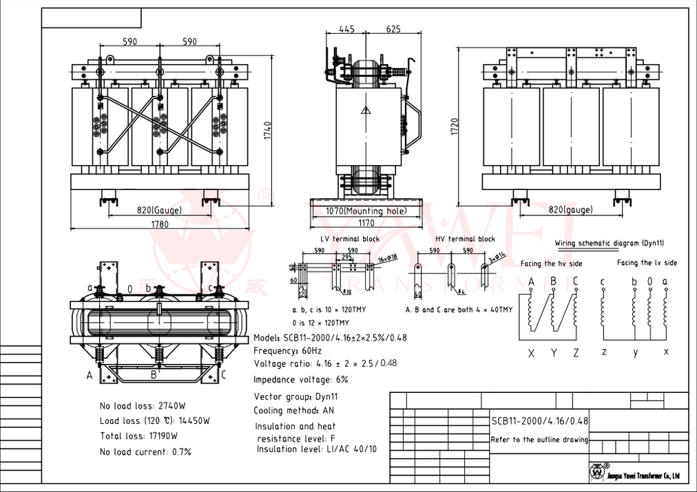
تم تسليم هذا المحول الجاف 2 {5}} 00 كيلو فوكسا من النوع الجاف إلى الدومينيكان في عام 2024. إن الطاقة المقدرة لمحول النوع الجاف هي 2000 كيلو فولت أمبير ، والجهد الأساسي هو 4.16 كيلو فولت والجهد الثانوي هو 0.48 كيلو فولت مع اتصال دلتا ستار. توفر تقنية الراتنج المصبوب عزلًا ممتازًا وحماية بيئية ، إلى جانب تقنية لف الرقائق داخل الراتنج ، توفر محول النوع الجاف النهائي من حيث الأداء العازلة وقوة الدائرة القصيرة التي تضمن الموثوقية على المدى الطويل لكل من التوزيع والتطبيقات الخاصة. يمكن تزويد محولات الراتنجات المصبوب إما باستخدام اللفات الألمنيوم أو النحاس مع إمكانية نظام العزل من الفئة F أو الفئة H ، ويمكن تصميمها لتركيب داخلي أو خارج الباب مع حاويات مختلفة.
نطاق العرض
المنتج: محول النوع الجاف من الراتنج
مستوى الجهد: ما يصل إلى 35 كيلو فولت
مستوى التصنيف: ما يصل إلى 20mVa
يمكن تصميم المحول وفقًا لمتطلبات العميل
125 0 kva 10\/0.4kV نوع بيانات البيانات الفنية
| يكتب | راتنج يلقي |
| نموذج |
SCB 11-2000 kva |
| طريقة التبريد |
و |
| الابتدائية والثانوية (HV\/LV) | 4.16\/0. 48kV |
| التردد المقنن |
60 هرتز |
| القوة المقدرة | 2000 كيلو فولت أمبير |
| تيار مصنّف (HV\/LV) | 277.57/2405.63 |
| نسبة الجهد |
(4.16±2*2.5%/0.48) |
| مقاومة |
6% |
| مجموعة الاتصال |
Dyn11 |
| تنظيم الجهد | حنفية عدم التحميل |
| مستوى العزل |
F |
| مستوى العزل المتعرج: تدافع الموجة الكامل\/تردد الطاقة |
40kV\/10kV |
| خسارة عدم التحميل |
2740W |
| خسارة على التحميل |
14450W |
| لا حمولة التيار |
0.7% |
| إجمالي الخسارة |
17190W |
| وزن |
4.43T |
الرسم العام

عرض ورشة العمل

ملف اللف من الألومنيوم HV لفائف ألمنيوم ألمنيوم لفائف متعرج


التجميع النهائي للاختبار خارج الحمل

كيفية إنتاج محول وفقًا لمتطلبات العملاء؟

مزايا محول النوع الجاف:
1. لا خطر النار
2. السلامة للأشخاص والممتلكات
3. انقطاع تكاليف العميل
4.
5. الصيانة والتلوث خالية
6. مناسبة للرطوبة و\/أو ملوثة
7. مقاومة ممتازة لتأثير الدائرة القصيرة
8. قدرة ممتازة لدعم الحمل الزائد
9. أداء ممتاز تجاه الظواهر الزلزالية
10. تكاليف الادخار تعطي تكاليف منخفضة ذات صلة بالتركيب
11. التثبيت السهل
تعبئة وتسليم محول عمود الطور الواحد
يمكن أن توفر تغليف الصندوق الخشبي حماية قوية وتقليل التأثير والاهتزاز على المحولات أثناء النقل. الحالات الخشبية لها أداء ختم جيد ، ويمكن أن تمنع الرطوبة والغبار من الدخول ، لذلك يمكن أن تحمي المحولات من العوامل البيئية ، وسهلة تكديس وتسهيل التحميل والتفريغ والتعامل أثناء النقل ، وتحسين الكفاءة اللوجستية.

التعليمات
1. متى يمكنك تسليم المحول؟
يعتمد ذلك على كمية وقدرة المحول ، عادةً خلال شهر واحد منذ رسم التاريخ الذي أكده المشتري.
2. ما هي المدة التي يمكنك توفيرها ضمان الجودة؟
24 شهرًا منذ تشغيل محول التاريخ.
3. ما هي طريقة الدفع التي تقبلها؟
T\/T (النقل السلكي) المفضل ، L\/C على حد سواء مقبولة.
الوسم : 2000 كيلو فولت أمبير 4.16KV راتنجات الإيبوكسي المصبوب من النوع الجاف من النوع الجاف المحول ، الصين 2000 كيلو فولت أمبير 4.16 كيلو فولت راتنجات الإيبوكسي المصنعة من النوع الجاف لأسفل مصنعي المحولات والموردين والمصنع, محول للأسواق الوطنية, محول قياسي, محول للمفاوضات, محول للأسواق الأسترالية, محول للإعلان, محول للآلات







