بريد إلكتروني

peter@yaweitransformer.com

هاتف

+8613776993069

محولات مثبتة القطب

محولات مثبتة القطب

Yawei Transformer خبرت في تصميم وإنتاج محولات مثبتة على القطب التي تلبي المعايير الدولية مثل ANSI\/IEEE C57 ، CSA C2.1 ، CSA C2.2 ، IEC 60076 ، AS 60076 ، ENA TS 35-1 ، وأكثر من ذلك. لا يتوافق المحول الذي يمتلك قطب الطور الواحد فقط مع متطلبات قيمة الكفاءة التي تحددها DOE و CSA أيضًا.
إرسال التحقيق
الوصف
معلمات التقنية

 

وصف المنتجات

طور Sinlge Post Pole Beal محول الميزات الهيكلية

1. تحتوي أغطية الخزان على البطانات الخزفية عالية الجهد التي تأتي مع أطراف الحلقة ، والتي يمكن أن تستوعب كابلات الألومنيوم أو النحاس.

2. بنية الخياطة الدائرية لغطاء الخزان يضمن توزيع الإجهاد وختم موثوق به.

3. براغي الحلقة على جدار الخزان بمثابة جلبة ومحطة منخفضة الجهد ومغطاة بالقصدير.

4. هذا العنصر يأتي مع صمام تخفيف الضغط قادر على ختم الذات.

5. وفقًا لمعايير ANSI ، فإن تعليق المحول في الجزء العلوي والسفلي يتوافق.

6. محطة الأرض على الخزان هي محطة الأرض الترباس.

 

ميزات محول مثبتة على القطب

1. التصميم الفعال

2. كفاءة عالية ومستويات ضوضاء منخفضة

3. القدرة على الجهد الثنائي

4.Customization بناءً على متطلبات محددة

5. Coating يجتمع أو يتجاوز معيار IEEE C57

6.CSA يتوافق مع العروات رفع

7. ختم مقلوب للحماية ضد العوامل البيئية

8. بولير من نوع البطانات المنخفضة الجهد

9. بوابات الجهد العالي من النوع

10. تغطية مخصصة أو بطانات الجهد الجانبية

11. محطات نوع المشبك أو المشبك

12. أطراف الجهد العليا والمنخفضة

13.com مع كل من الزيت المعدني والزيوت النباتية القابلة للتحلل كزيت عزل

14.Provision for surge arrester ، مع توفر أقواس إذا لزم الأمر

 

المكونات الرئيسية المنتج

 

pole transformer components pole transformer detail

1. جلبة الجهد العالي

المادة الرئيسية لجلبة الجهد العالي هي الخزف ودورها الرئيسي هو ربط اللف الجهد العالي وخطوط الجهد العالي الخارجي ، وحماية العزل ، والحماية من التسلل الخارجي ، وتوصيل الحرارة وتبديد الحرارة ، وما إلى ذلك ، لضمان التشغيل الطبيعي وسلامة المحول.

 

4. جلبة الجهد المنخفض

هناك نوعان من جلبة الجهد المنخفض كنوع مجلة ونوع مقطع. يمكن تصميمه وفقًا لاحتياجات العملاء.

 

5. صمام تخفيف الضغط

يستخدم صمام تخفيف الضغط على المحول المثبت على عمود الطور الواحد بشكل أساسي لحماية التشغيل الآمن للمحول ، والحفاظ على ظروف العمل العادية ، وضبط ضغط الغاز داخل المحول لضمان استقراره وموثوقيته.

 

بالنسبة لنوع CSP للمحول الذي تم تثبيت عمود الطور الواحد ، هناك أجزاء إضافية (ملحقات) مثل توقيف الإضاءة ، والزهر الحالي الداخلي ، وقاطع الدائرة. يمكن أن يحمي نوع CSP نفسه من الرعد والبرق ، والدوائر القصيرة ، وحماية خط العبور والتوزيع من الفشل الحالي بسبب الوظيفي الذاتي.

 

مؤهل الشركة

 

مع فريق تقني محترف وتجربة شاملة للمشروع الدولي ، يمكن لـ Yawei Transformer تصميم وتصنيع جميع أنواع المحولات الكهربائية مع المعايير الدولية.

certificates

نطاقات تصنيف المحولات

تختلف تصنيفات المحولات المحمولة على عمود المرحلة الواحدة بناءً على متطلبات الطاقة لنظام التوزيع الكهربائي.

فيما يلي تصنيفات الطاقة والجهد الفريدة والفريدة لكل من المحولات ذات الطور الواحد والثلاث مراحل مثبتة على القطب:

 

تصنيفات طاقة محول محول محمولة أحادية الطور:

10 كيلو فولت أمبير ، 25 كيلو فولت أمبير ، 37.5 كيلو فولت أمبير ، 50 كيلو فولت أمبير ، 100 كيلو فولت أمبير ، 167 كيلو فولت أمبير ، 250 كيلو فولت أمبير ، 333 كيلو فولت أمبير

تصنيفات الجهد المحول المحول أحادي الطور:

2400V ، 7200V ، 12470V ، 7620V ، 13200V ، 7957V ، 13800V ، 19920V ، 34500V ، 27600V (فريدة من نوعها في أونتاريو ، كندا).

 

تصنيفات طاقة المحولات المحمولة المحمولة من ثلاث مراحل:

25kva ، 45kva ، 63kva ، 100kva ، 200kva ، 315kva ، 400kva و 500kva.

تصنيفات الجهد الاسمي الأولي من ثلاث مراحل:

تصنيف الجهد الاسمي الأساسي من 11 كيلو فولت إلى 33 كيلو فولت.

 

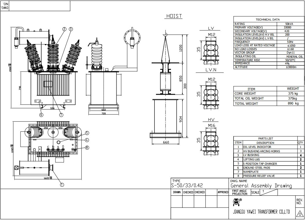
الرسم العائد العام للمحول

50KVA

50-33-042 pole mounted transformer

عرض الوجه

20240722172125

CSA

 

المعلمات التقنية العامة للمحول

 

السعة المقدرة (KVA)

A

B

C

D

قداس (كجم)

زيت (لتر)

10

885

560

500

525

100

22

25

935

560

560

590

160

30

50

1035

710

635

635

260

60

75

1035

710

745

745

375

90

100

1135

815

770

770

555

100

167

1135

1015

795

795

690

160

 

تطبيقات المحولات

تلعب المحولات المثبتة على القطب دورًا حاسمًا في أنظمة توزيع الطاقة على مستوى الأرض. تطبيقهم واسع النطاق بارز بشكل خاص في الضواحي والريفية ، حيث تكون بمثابة مكونات لا غنى عنها داخل البنية التحتية للسلطة من ضواحي المدينة والقرى. عادة ما يتم تثبيت هذه المحولات إلى الأعمدة القوية أو الأعمدة الخشبية ، مما يضمن عملية تثبيت موثوقة وآمنة. بالإضافة إلى ذلك ، يتم استخدام المحولات المثبتة على القطب على نطاق واسع في شبكات المرافق.

pole transformer application product-651-486

 

تعبئة المحولات والشحن

يضم محول Yawei أكثر من 30 عامًا من الخبرة في تصنيع المحولات والتصدير ، مما يجعلها بارعة للغاية في تعقيدات عبوات المحولات والنقل.

 

حالة خشبية أو وفقًا لمتطلبات العميل: حالة خشبية أو تعبئة عارية وفقًا لمتطلبات العميل. متطلبات صنع وتعزيز صناديق التعبئة. نحن نمتثل بدقة للمعايير الدولية.

pole transformer packing 202407221717191 202407221717251

 

المنتجات ذات الصلة

 

25 kVA Pole Mounted Transformer
25 كيلو فولت أمبير محول مثبت على عمود
37.5 kVA Pole Mounted Transformer
37.5 كيلو فولت أمبير محول مثبت على عمود
50 kVA Pole Mounted Transformer
50 كيلو فولت أمبير محول مثبت على عمود
100 kVA Pole Mounted Transformer
100 كيلو فولت أمبير محول مثبت على عمود
75kVA Pole Mounted Transformer
167 كيلو فولت أمبير محول مثبت على القطب
75kVA Pole Mounted Transformer
75 كيلو فايفا محول مثبت

 

المنتجات الرئيسية من Yawei

 

التعليمات

 

س: 1. ما هي الأنواع الثلاثة من المحولات؟

ج: تأتي المحولات ، وهي مكونات مهمة في أنظمة الطاقة الكهربائية ، في أنواع مختلفة حسب تصميمها ووظائفها وتطبيقها. محولات الطاقة: الوظيفة: تستخدم في المقام الأول في شبكات نقل الطاقة الكهربائية إلى زيادة مستويات الجهد (زيادة) أو خطوة (انخفاض). الخصائص: فهي كبيرة بشكل عام ، ولها تصنيفات طاقة عالية ، ومصممة للتشغيل المستمر بكفاءة عالية. الموقع: عادة ما توجد في محطات توليد الطاقة وفي النقاط الرئيسية في شبكات الإرسال. محولات التوزيع: الوظيفة: تستخدم للتنحي الجهد لتوزيع الكهرباء على المنازل والشركات والمستخدمين النهائيين الآخرين. الخصائص: فهي أصغر من محولات الطاقة وهي مصممة لتوفير تحول الجهد النهائي في نظام توزيع الطاقة الكهربائية. الموقع: عادة ما يتم العثور عليه على أعمدة المرافق ، في قبو تحت الأرض ، أو في المحطات الفرعية الصغيرة في المناطق السكنية أو التجارية. محولات الأدوات: الأنواع الفرعية: تشمل المحولات الحالية (CTS) والمحولات المحتملة (PTS) أو محولات الجهد (VTS). الوظيفة: المستخدمة لقياس وتتابع الواقي في الشبكات الكهربائية. المحولات الحالية (CTS): مصممة لتوفير تيار في ملفه الثانوي يتناسب مع التدفق الحالي في ملفه الأساسي. يتم استخدامها لقياس التيارات الكبيرة وللحصول على الحماية في دوائر الجهد العالي. المحولات المحتملة (PTS) أو محولات الجهد (VTS): توفير جهد محدد يتناسب مع الجهد في الدائرة التي يتم توصيلها ، وتسهيل القياس الآمن والمراقبة. يخدم كل نوع من المحولات دورًا محددًا في نظام الطاقة الكهربائية ، حيث تكون محولات الطاقة جزءًا لا يتجزأ من نقل المسافات الطويلة ، ومحولات التوزيع الضرورية لتسليم الطاقة المحلية ، ومحولات الأدوات المهمة لحماية القياس الدقيقة وحماية النظام.

س: 2. كيف يعمل محول القطب؟

ج: إن محول القطب ، الذي يُرى عادةً على أعمدة المرافق في المناطق السكنية والتجارية ، هو نوع من محول التوزيع الذي ينحدر الجهد العالي من الشبكة الكهربائية إلى جهد أقل مناسب للاستخدام في المنازل والشركات. مدخلات الجهد العالي: يتلقى المحول الكهرباء عالية الجهد من خطوط الطاقة. عادة ما يكون هذا الجهد في نطاق الآلاف من فولت (على سبيل المثال ، 7200 فولت) ، وهو مرتفع للغاية للاستخدام المباشر في المنازل أو الشركات. محول خطوة: محول القطب هو في الأساس محول خطوة. يحتوي على مجموعتين من الملفات أو اللفات - الجرح الأساسي والثانوي - حول قلب مغناطيسي. يتم توصيل اللف الرئيسي بخط طاقة الجهد العالي ، ويتم توصيل اللف الثانوي بشبكة التوزيع المحلية. تقليل الجهد: يعمل المحول على مبدأ الحث الكهرومغناطيسي. يخلق الجهد العالي في اللف الابتدائي مجالًا مغناطيسيًا في النواة ، والذي يحفز بعد ذلك جهدًا أقل في اللف الثانوي. تحدد نسبة عدد المنعطفات في الملف الأساسي إلى عدد المنعطفات في الملف الثانوي كمية تخفيض الجهد. نقل الطاقة: يتم نقل الطاقة من اللف الابتدائي إلى اللف الثانوي عبر المجال المغناطيسي ، دون اتصال كهربائي مباشر بين الاثنين. هذا يقلل من جهد المدخلات العالي إلى جهد الخرج السفلي. ناتج الجهد المنخفض: يتم تقليل جهد الخرج إلى مستوى مناسب للاستخدام المنزلي ، وعادة ما يكون حوالي 120\/240 فولت في أمريكا الشمالية أو 230\/400 فولت في العديد من البلدان الأخرى. ثم يتم توزيع هذا الجهد السفلي على المنازل والشركات من خلال الشبكة الكهربائية المحلية. السلامة والعزل: تم تصميم المحول مع ميزات السلامة ، بما في ذلك العزل والتأريض ، للحماية من المخاطر الكهربائية. بالإضافة إلى ذلك ، عادة ما يتم تجهيز محولات القطب مع الصمامات أو قواطع الدائرة لمنع الأضرار في حالة الأحمال الزائدة أو الأعطال. تعد محولات القطب ضرورية في شبكة التوزيع ، مما يتيح تسليم الكهرباء الآمن والفعال للمستخدمين النهائيين. وهي مصممة لتكون قوية وموثوقة ، وغالبًا ما تصمد أمام مختلف الظروف البيئية مع توفير خدمة مستمرة.

س: 3. كيف يمكن للعديد من المنازل توريد محول 50 كيلو فولت أمبير؟

ج: يعتمد عدد المنازل على 50 كيلو فولت أمبير (كيلوفولت-آمبيرز) التي يمكن أن يوفرها على عدة عوامل ، بما في ذلك متوسط ​​استهلاك الكهرباء لكل منزل ، وحمل ذروة كل منزل ، وتوازن الحمل الكلي. ومع ذلك ، يمكن إجراء تقدير تقريبي مع بعض الافتراضات العامة. متوسط ​​استهلاك الكهرباء المنزلية: هذا يختلف اختلافًا كبيرًا حسب المنطقة ، ونوع السكن ، ونمط الحياة. في الولايات المتحدة ، على سبيل المثال ، يبلغ متوسط ​​استهلاك الأسرة حوالي 877 كيلو وات في الشهر ، أو ما يقرب من 1.2 كيلو واط. ومع ذلك ، يمكن أن يكون هذا العدد أقل بشكل كبير في البلدان الأخرى أو في المنازل الموفرة للطاقة. سعة المحول: يمكن لمحول 50 كيلو فولت أمبير توفير 50 ​​كيلو واط في ظل ظروف مثالية (على افتراض عامل القدرة 1 ، وهو تبسيط لأن عوامل الطاقة الفعلية قد تكون أقل). ذروة مقابل متوسط ​​الحمل: لا ترسم جميع المنازل الحمل الأقصى في وقت واحد. عادةً ما يتم تنوع الأحمال السكنية ، مما يعني أن أحمال الذروة تحدث في أوقات مختلفة. مع وضع هذه النقاط في الاعتبار ، دعنا نقوم بحساب تقريبي على افتراض وجود حمولة مستمرة متوسطة قدرها 1.2 كيلو واط لكل أسرة: تبلغ سعة المحول الإجمالية 50 كيلو فولت أمبير (أو حوالي 50 كيلو وات للبساطة). يعطي تقسيم هذه السعة على متوسط ​​الحمل لكل منزل تقديرًا لعدد المنازل التي يمكن أن توفرها: يوفر هذا الحساب تقديرًا أساسيًا ، ولكن يمكن أن تختلف الأرقام الفعلية. لتخطيط أكثر دقة ، ينبغي النظر في عوامل مثل ذروة الطلب واللوائح المحلية وهوامش السلامة. بالإضافة إلى ذلك ، في الممارسة العملية ، تميل المرافق إلى التخطيط لحمل أقل لكل محول لضمان الموثوقية وحساب الزيادات المستقبلية في الطلب على الكهرباء.

س: 4. المحولات المثبتة على القطب المملوء بالزيت؟

ج: نعم ، العديد من المحولات المثبتة على القطب مملوءة بالزيت. يخدم الزيت عدة وظائف مهمة في هذه المحولات: العزل: يوفر الزيت عزلًا كهربائيًا. إنه يحيط بالمكونات الداخلية ، مثل اللفات والأساسية ، مما يمنع التصريفات الكهربائية والأقواس داخل المحول. التبريد: الزيت يعمل أيضًا كبرودة. يمتص الحرارة الناتجة عن المحول أثناء التشغيل ويساعد في تبديد هذه الحرارة. هذا أمر بالغ الأهمية للحفاظ على درجة حرارة المحول ضمن حدود التشغيل الآمنة. الحماية: عن طريق ملء غلاف المحول ، يحمي الزيت المكونات الداخلية من الرطوبة والغبار وغيرها من الملوثات التي يمكن أن تؤثر على أداء المحول وعمره. نوع الزيت المستخدم في المحولات هو زيت عزل متخصص ، وعادة ما يكون الزيت المعدني ، يتم تكريره بعناية للحفاظ على خصائصه العازلة والاستقرار الحراري. في السنوات الأخيرة ، كان هناك تحرك نحو استخدام زيوت قابلة للتحلل وأقل ضررًا بيئيًا ، وخاصة في المحولات الموجودة في المناطق الحساسة. تم تصميم هذه المحولات المملوءة بالزيت مع الأختام وتدابير الحماية لمنع تسرب النفط وتخضع للوائح والصيانة المنتظمة لضمان تشغيلها الآمن. في حالة التسريبات أو غيرها من القضايا ، فإنها تتطلب اهتمامًا سريعًا لتجنب الأضرار البيئية والمخاطر التشغيلية.

س: 5. ما هو الحد الأقصى لسعة المحول المثبت على القطب؟

ج: يمكن أن تختلف سعة الأقصى للمحولات المثبتة على القطب ، لكنها عادة ما تتراوح ما يصل إلى 500 كيلو فولت أمبير (كيلوفولت أمبير). تتراوح الأحجام الأكثر شيوعًا للمناطق السكنية في حدود 25 كيلو فولت أمبير إلى 100 كيلو فولت أمبير. يمكن استخدام القدرات الأكبر ، مثل 250 كيلو فولت أمبير إلى 500 كيلو فولت أمبير ، في المناطق ذات المتطلبات العالية للحمل ، مثل المناطق التجارية أو المناطق السكنية المكتظة بالسكان. يتم اختيار قدرة محول مثبت على القطب بناءً على عدة عوامل: الطلب الكهربائي على الحمل الكهربائي: الحمل الكهربائي الكلي للمنطقة التي يخدمها ، والتي تشمل المنازل السكنية والمباني التجارية وإضاءة الشوارع ، إلخ. تستخدم المرافق في كثير من الأحيان عامل الحمل وحسابات عامل التنوع لتقدير هذا. النمو المستقبلي: الزيادات المتوقعة في الطلب بسبب تنمية المنطقة أو النمو السكاني. الحجم المادي وقيود الوزن: يجب أن تكون المحولات المثبتة على القطب مدعومة جسديًا بواسطة أعمدة المرافق ، لذلك هناك حد عملي لحجمها ووزنها. السلامة والكفاءة: قد تكون المحولات الكبيرة أكثر كفاءة من حيث الخسائر ولكن يجب موازنة مع تكلفة التثبيت والصيانة العملية. على الرغم من أن 500 كيلو فولت أمبير يمكن اعتبارها حدًا أعلى تقريبيًا للمحولات المثبتة على القطب ، فإن الحد الأقصى للسعة المحددة ستعتمد على تصميم الشركة المصنعة ومتطلبات ومعايير شركة المرافق. بالنسبة للأحمال التي تتطلب أكثر من ما يمكن أن يتم التعامل مع محول واحد مثبت على القطب ، يمكن استخدام محولات متعددة ، أو قد يتحول التثبيت إلى محلول محط أو محط.

س: 6. كيف يمكن للعديد من المنازل توفير محول 100 كيلو فولت أمبير؟

ج: يعتمد عدد المنازل التي يمكن أن يوفرها محول 100 كيلو فولت أمبير على عدة عوامل ، مثل متوسط ​​استهلاك الكهرباء لكل منزل ، وذروة الطلب ، وتنوع الحمل. ومع ذلك ، يمكننا تقديم تقدير عام على أساس متوسط ​​القيم. لنفترض: متوسط ​​استهلاك الكهرباء: يمكن أن يختلف هذا بشكل كبير على الموقع ونوع الإسكان وأسلوب الحياة. على سبيل المثال ، في الولايات المتحدة ، يبلغ متوسط ​​استهلاك الكهرباء المنزلية حوالي 877 كيلو واط شهريًا أو حوالي 1.2 كيلو واط كحمل مستمر. ومع ذلك ، قد يكون هذا الرقم أقل في المناطق الأخرى أو في المنازل الموفرة للطاقة. سعة المحول: قدرة المحول هي 100 كيلو فولت أمبير. على افتراض عامل قوة 1 للبساطة (عادة ما تكون عوامل الطاقة في العالم الحقيقي أقل من 1) ، وهذا يترجم إلى 100 كيلو واط. ذروة مقابل متوسط ​​الحمل: استخدام الكهرباء السكنية ليس ثابتًا ؛ يصل إلى ذروتها خلال أوقات معينة من اليوم. لذلك ، لا يحتاج المحول إلى الحجم لمجموع الحد الأقصى المحتمل للطلب على جميع المنازل التي يوفرها. باستخدام افتراض 1.2 كيلو واط متوسط ​​الحمل المستمر لكل أسرة: دعنا نحسب هذا. يمكن لمحول 100 كيلو فولت أمبير توفير ما يقرب من 83 منزلاً ، بافتراض متوسط ​​حمولة مستمرة قدرها 1.2 كيلو وات لكل أسرة. من المهم أن نلاحظ أن هذا تقدير مبسط. يمكن أن يختلف العدد الفعلي بناءً على عوامل مثل ذروة الطلب ، وكفاءة الطاقة في المنازل ، والمناخ المحلي (التي تؤثر على متطلبات التدفئة والتبريد) ، والأجهزة الكهربائية المحددة المستخدمة. بالإضافة إلى ذلك ، عادة ما تقوم المرافق بتصميم أنظمتها بهامش لضمان الموثوقية واستيعاب الزيادات المستقبلية في الطلب.

س: 7. ما مدى تكلفة محول عمود الطاقة؟

ج: يمكن أن تختلف تكلفة محول عمود الطاقة على نطاق واسع بناءً على عدة عوامل ، مثل قدرتها (تصنيف KVA) ، النوع (المرحلة الواحدة أو ثلاث مراحل) ، الشركة المصنعة ، وأي ميزات أو متطلبات محددة. السعة: يعد تصنيف KVA للمحول هو أحد العوامل المحددة في تكلفته. محولات السعة الأعلى أكثر تكلفة. على سبيل المثال ، سيكلف محول صغير (مثل 25 كيلو فولت أمبير أو 50 كيلو فولت أمبير) المستخدم في المناطق السكنية أقل من المحولات الكبيرة المستخدمة لأغراض تجارية أو صناعية. النوع: المحولات ذات الطور الواحد أرخص عمومًا من المحولات ثلاثية الطور. يعتمد الاختيار بينهما على التطبيق وطبيعة الحمل الكهربائي. الميزات والمواصفات: يمكن أن تضيف ميزات إضافية مثل العبوات المقاومة للعبث وأنظمة احتواء النفط وقدرات المراقبة الذكية إلى التكلفة. الشركة المصنعة والجودة: تؤثر العلامة التجارية والجودة أيضًا على السعر. قد يتقاضى الشركات المصنعة المشهورة فرض رسوم أكثر ، لكن محولاتهم غالبًا ما توفر موثوقية وعمرًا أفضل. التثبيت والملحقات: يجب أن تفسر التكلفة الإجمالية أيضًا التثبيت ، والتي يمكن أن تشمل الأعمدة والأسلاك وأجهزة الحماية والعمالة. يجب أيضًا النظر في تكلفة النقل وأي تدابير امتثال بيئية ضرورية (مثل أنظمة احتواء النفط للمحولات المملوءة بالزيت). اعتبارًا من آخر تحديث لي في أبريل 2023 ، يمكن أن يختلف النطاق السعري لمحول عمود الطاقة من بضعة آلاف من الدولارات لنماذج السعة الأصغر إلى عشرات الآلاف من النماذج الأكبر والأكثر ثراءً. ومع ذلك ، يمكن أن تتقلب هذه الأسعار بناءً على ظروف السوق وتكاليف المواد ومتطلبات العملاء المحددة. بالنسبة للأسعار الأكثر دقة والحالية ، يوصى بالحصول على عروض أسعار من العديد من الشركات المصنعة أو الموردين والنظر في التكلفة الإجمالية للملكية ، والتي لا تتضمن فقط سعر الشراء الأولي ولكن أيضًا التثبيت والصيانة والعمر المتوقع.

س: 8. كيف تعرف ما إذا كان محول القطب سيئًا؟

ج: إن تحديد محول القطب المعيب أو الفاشل ينطوي على مراقبة بعض العلامات والأعراض. ومع ذلك ، من المهم أن تتذكر أنه ينبغي القيام بأي عمل تفتيش أو صيانة من قبل محترفين مؤهلين بسبب المخاطر العالية المرتبطة بالمعدات الكهربائية. الضوضاء غير العادية: إن صوت الطنين أمر طبيعي بالنسبة للمحولات ، ولكن يمكن أن يشير الضوضاء الصاخبة أو الضوضاء أو الأزيز إلى مشكلة. تسرب الزيت: بالنسبة للمحولات المملوءة بالزيت ، فإن أي علامة على تسرب الزيت حول المحول يمثل مصدر قلق. يمكن أن يؤدي تسرب الزيت إلى فشل العزل والتبريد. ارتفاع درجة الحرارة: يمكن أن تشير الحرارة المفرطة أو النقاط الساخنة على غلاف المحول إلى مشكلة داخلية. في حين أن المحولات تولد الحرارة عادة ، فإن الحرارة المفرطة قد تشير إلى زيادة الحمل الزائد أو فشل العزل أو المشكلات الداخلية الأخرى. الرائحة المحترقة: الرائحة المحترقة أو الدخان المرئي هي علامة واضحة على وجود مشكلة في ارتفاع درجة الحرارة أو خطأ كهربائي داخل المحول. الضرر الجسدي: علامات الأضرار الجسدية مثل الخدوش أو الشقوق أو الصدأ يمكن أن تعرض سلامة وأداء المحول. تقلبات الطاقة: إذا فشل المحول ، فقد يتسبب ذلك في تقلبات في الإمداد الكهربائي ، مثل الأضواء المتقطعة أو انقطاع التيار الكهربائي المتقطع. قواطع الدائرة المتجولة أو الصمامات المنفوخة: يمكن أن يكون التعثر المتكرر لقواطع الدائرة أو الصمامات المنفوخة في الدائرة المتصلة علامة على أن المحول يعطل. الانحناء المرئي أو الشرر: أي تنشئة مرئية أو إثارة حول المحول هي مشكلة خطيرة وتحتاج إلى اهتمام فوري. التآكل: يمكن أن يؤدي التآكل على أي جزء من المحول ، وخاصة على الاتصالات ، إلى حالات الفشل. العمر: المحولات الأقدم أكثر عرضة للفشل. يمكن أن توفر معرفة العمر وتاريخ الخدمة نظرة ثاقبة على احتمال الفشل. إذا كنت تشك في أن محول القطب سيء ، فلا تقترب أو تحاول فحصه بنفسك. الإبلاغ عن مخاوفك إلى شركة الطاقة المحلية أو مزود الأداة المساعدة. لقد قاموا بتدريب أفراد مجهزين لتقييم هذه المعدات وإصلاحها بأمان. تعد الصيانة والتفتيشات المنتظمة من قبل المهنيين مفتاحًا لضمان طول العمر وسلامة محولات القطب.

س: 9. ما هو الغرض من محول عمود الطاقة؟

ج: إن الغرض من محول عمود الطاقة ، الذي يُرى بشكل شائع على أعمدة المرافق في المناطق السكنية والتجارية ، هو التنزه في الكهرباء عالية الجهد من شبكة الطاقة إلى جهد أقل مناسبة للاستخدام في المنازل والشركات والمباني الأخرى. جهد الجهد: الوظيفة الأساسية لمحول القطب هي تقليل الجهد العالي من خطوط الطاقة إلى مستوى أكثر قابلية للإدارة. على سبيل المثال ، قد ينحدر الجهد من عدة آلاف من الفولتات إلى 120\/240 فولت ، وهو الجهد القياسي للمباني السكنية والتجارية في العديد من البلدان. العزلة الكهربائية: توفر المحولات عزلًا كهربائيًا بين خطوط النقل عالية الجهد وخطوط توزيع الجهد المنخفض. هذه العزلة أمر بالغ الأهمية للسلامة ويساعد في التحكم في نظام توزيع الطاقة. كفاءة الطاقة: عن طريق التنزه في الجهد عند نقطة الاستخدام ، تضمن محولات القطب أن يتم تسليم الكهرباء بكفاءة. يتم استخدام الجهد العالي للإرسال على مسافات طويلة لتقليل فقدان الطاقة ، وتقليله إلى الحد الأدنى من الخسائر التي قد تحدث إذا تم تسليم الجهد العالي مباشرة للمستخدمين النهائيين. السلامة: خفض الجهد إلى مستوى أكثر أمانًا يقلل من خطر المخاطر الكهربائية. هذا ضروري للمناطق السكنية والمدارس والشركات والمواقع المأهولة الأخرى. يسهل التوزيع: هذه المحولات هي مكون رئيسي في شبكة التوزيع الكهربائي ، مما يجعل من الممكن توزيع الكهرباء على منازل وشركات متعددة من محول واحد ، اعتمادًا على قدرتها. القدرة على التكيف: يمكن استخدام محولات مختلفة لاستيعاب فولتية مختلفة واحتياجات الطاقة ، مما يجعل نظام توزيع الطاقة قابل للتكيف مع المتطلبات المختلفة. باختصار ، تعد محولات عمود الطاقة ضرورية لتكييف الكهرباء عالية الجهد المنقولة عبر مسافات طويلة إلى الكهرباء ذات الجهد المنخفض المستخدمة في الإعدادات اليومية. إنها رابط حاسم في سلسلة توصيل الكهرباء ، مما يضمن أن الطاقة آمنة وفعالة وموثوقة للمستخدمين النهائيين.

س: 10. ما هو الغرض الرئيسي من محولات التوزيع المثبتة على القطب أو القطب؟

ج: يتمثل الغرض الرئيسي من كل من محولات التوزيع المثبتة على الوسادة والمثبتة على القطب في التنحي بالكهرباء عالية الجهد من شبكة الطاقة إلى جهد أقل مناسبة للاستخدام في المنازل والشركات وتطبيقات المستخدم النهائي الأخرى. محولات مثبتة على وسادة الموقع: مثبت على الأرض ، مضمون إلى وسادة خرسانية. التصميم: مغلق في خزانة معدنية مغلقة ، فهي عادة أكبر وأقوى من المحولات المثبتة على القطب. الاستخدام: شائع الاستخدام في الضواحي والحضرية والصناعية حيث يحتاج المحول إلى أن يكون أقل هشاشة وحيث لا يوجد مساحة كافية للقطب. السلامة والجمال: يوفر العلبة السلامة للجمهور وأيضًا مظهر أكثر جمالية. الوصول: خدمت من مستوى الأرض ، مما يسهل الوصول إلى الصيانة والإصلاح من المحولات المثبتة على القطب. محولات مثبتة على القطب الموقع: مثبتة على أعمدة فائدة. التصميم: أصغر ومحتوى في خزان معدني ، معلق فوق الأرض. الاستخدام: يستخدم بشكل متكرر في المناطق السكنية ، والإعدادات الريفية ، وحيث لا تكون المساحة قيدًا. الارتفاع: أن تكون مرتفعة ، فهي أقل سهولة للجمهور ، مما يضيف مقياسًا للسلامة. توفير المساحة: فهي مثالية عندما تكون المساحة الأرضية محدودة أو في البيئات التي يكون فيها التثبيت الأرضي غير ممكن. الميزات والوظائف الشائعة تحول الجهد: يخدم كلا النوعين الوظيفة الأساسية لجهد الجهد-تحويل الكهرباء عالية الجهد إلى جهد أقل للاستخدام السكني أو التجاري الآمن. العزلة الكهربائية: أنها توفر العزلة الكهربائية بين نظام نقل الجهد العالي ونظام التوزيع منخفض الجهد. كفاءة الطاقة: من خلال تقليل الجهد بالقرب من نقطة الاستخدام ، تساعد هذه المحولات في تقليل فقدان الطاقة المرتبط بنقل المسافات الطويلة. السلامة والموثوقية: تم تصميم كلا النوعين لضمان توزيع آمن وموثوق بالكهرباء ، ويتوافق مع معايير وأنظمة السلامة المختلفة. باختصار ، في حين تختلف المحولات المثبتة على الوسادة والمثبتة على القطب في وضعها وتصميمها المادي ، فإن وظيفتها الأساسية هي نفسها: لتقليل الكهرباء عالية الجهد بأمان وكفاءة من شبكة الإرسال إلى مستوى قابلين للاستخدام للمستخدمين النهائيين في مجموعة متنوعة من الإعدادات.

س: 11. كيف تعمل المحولات على البولنديين؟

ج: تعمل المحولات التي تم تثبيتها على أعمدة المرافق ، التي شوهدت عادةً في المناطق السكنية والتجارية ، عن طريق التنقيب عن الكهرباء عالية الجهد من شبكة الطاقة إلى جهد أقل مناسبة للاستخدام في المباني والمنازل. إدخال الجهد العالي: يتم توصيل المحول بخطوط توليد الطاقة عالية الجهد. عادةً ما يكون هذا الجهد أعلى بكثير مما هو آمن أو مفيد للاستخدام المباشر في المنازل أو الشركات. الحث الكهرومغناطيسي: يعمل المحول على مبدأ الحث الكهرومغناطيسي. يحتوي على مجموعتين من الملفات أو اللفات - اللف الأوائل واللف الثانوي - والتي يتم جرحها حول قلب مغناطيسي. التحول المتأرجح: يتم توصيل اللف الأساسي بخط طاقة الجهد العالي ، ويتم توصيل اللف الثانوي بشبكة التوزيع المحلية. يكون عدد المنعطفات في الملف الأساسي أكبر من الملف الثانوي ، مما يقلل من الجهد من الجانب الأساسي إلى الجانب الثانوي. التدفق المغناطيسي: عندما تتدفق الكهرباء من خلال اللف الابتدائي ، فإنها تخلق مجالًا مغناطيسيًا في القلب. هذا المجال المغناطيسي يحفز الجهد في اللف الثانوي. يتناسب الجهد الناتج في اللف الثانوي مع نسبة عدد المنعطفات في اللف الابتدائي إلى عدد المنعطفات في اللف الثانوي. تقليل الجهد: يحول المحول بشكل فعال الجهد العالي من الجهد إلى جهد إخراج أقل. على سبيل المثال ، قد ينحدر الجهد من آلاف فولت إلى 120\/240 فولت ، وهو الجهد القياسي للاستخدام السكني في العديد من البلدان. نقل الطاقة: يتم نقل الطاقة من اللف الابتدائي إلى اللف الثانوي عبر المجال المغناطيسي ، دون اتصال كهربائي مباشر بين الاثنين. السلامة والعزل: تم تصميم المحولات مع ميزات السلامة ، بما في ذلك العزل والتأريض ، للحماية من المخاطر الكهربائية. كما أنها مرفقة عادة في غلاف واقٍ. التوزيع على المستخدمين النهائيين: يتم توزيع كهرباء الجهد المنخفض بعد ذلك على المنازل والشركات من خلال الشبكة الكهربائية المحلية. تعد المحولات المثبتة على القطب مكونًا رئيسيًا في شبكة التوزيع ، مما يتيح تسليم الكهرباء الآمن والفعال للكهرباء للمستخدمين النهائيين. وهي مصممة لتكون قوية وموثوقة ، وغالبًا ما تصمد أمام مختلف الظروف البيئية مع توفير خدمة مستمرة.

س: 12. هل محولات مثبتة على القطب على الأرض؟

ج: نعم ، ترتكز المحولات المثبتة على القطب للسلامة والكفاءة التشغيلية. يعد التأريض المناسب جانبًا حاسمًا في تصميم المحولات والتركيب لعدة أسباب: السلامة الكهربائية: يساعد التأريض على حماية الأشخاص من الصدمة الكهربائية. في حالة وجود خطأ ، مثل دائرة قصيرة داخل المحول ، يوفر التأريض مسارًا منخفض المقاومة لتدفق تيار الخطأ إلى الأرض ، مما يقلل من خطر الصدمة الكهربائية لأي شخص بالقرب من المحول. حماية المعدات: يساعد التأريض على حماية المحول والمكونات الكهربائية الأخرى من التلف بسبب الأعطال أو ضربات البرق. من خلال توفير مسار للكهرباء الزائدة للتفريغ في الأرض ، فإنه يمنع تراكم الفولتية الخطرة. مستويات الجهد المستقر: يساعد التأريض في الأنظمة الكهربائية أيضًا على تثبيت مستويات الجهد ، مما يضمن أن المحول يعمل بفعالية وكفاءة. تقليل الضوضاء الكهربائية: يساعد أرضية جيدة على تقليل الضوضاء الكهربائية في النظام ، والتي يمكن أن تتداخل مع أداء المعدات الإلكترونية الحساسة. الامتثال التنظيمي: تتطلب الرموز والمعايير الكهربائية في معظم المناطق أساس المحولات المثبتة على القطب. تضمن هذه اللوائح أن تفي المنشآت بمعايير السلامة اللازمة. يتضمن نظام التأريض عادةً موصل تأريض (سلك يربط علبة المحول بقضيب أو شبكة تأريض) وقطب الأساس (مثل قضيب مدفوع في الأرض). يمكن أن تختلف المتطلبات المحددة للتأريض حسب الرموز الكهربائية المحلية ، وتصميم النظام الكهربائي ، والعوامل البيئية. من المهم أن نلاحظ أن جميع الأعمال التي تنطوي على المنشآت الكهربائية ، بما في ذلك التأريض ، يجب أن يتم من قبل المهنيين المؤهلين بسبب المخاطر العالية المعنية.

س: 13. كيف يتم توصيل محولات القطب؟

ج: يتم توصيل محولات القطب بالكهرباء عالية الجهد من خطوط الكهرباء إلى الجهد السفلي المناسب للاستخدام السكني أو التجاري. تتضمن الأسلاك الأساسية لمحول القطب اتصالات بخطوط توليد الجهد العالي ، والمحول نفسه ، وشبكة توزيع الجهد المنخفض. فيما يلي نظرة عامة مبسطة: اتصال خط الجهد العالي: يتم توصيل اللف الأساسي للمحول بخطوط الطاقة عالية الجهد. عادة ما تكون هذه الخطوط في الجزء العلوي من عمود الأداة المساعدة وتتصل بأحد المحطات الأساسية للمحول. عادةً ما يتم توصيل سلك التأريض من خط طاقة الجهد العالي إلى القطب ثم إلى الأرض ، مما يوفر مسارًا للأخطاء الكهربائية وتثبيت النظام. اللف الأساسي للمحول: تم تصميم اللف الرئيسي للمحول للتعامل مع جهد المدخلات العالي من خطوط الطاقة. هذا التعادل هو المكان الذي تبدأ فيه عملية تقليل الجهد. محايد وتأريض: المحول يرتكز على السلامة ولضمان التشغيل السليم. غالبًا ما يتم توصيل الموصل المحايد بنظام تأريض المحول. عادة ما تكون النقطة المحايدة لللف الأولية ترتكز. يرتبط هذا التأريض أيضًا بقضيب التأريض مدفوعًا إلى الأرض. المحول الثانوي لف: الهف الثانوي هو المكان الذي تنحرف فيه الجهد. عدد المنعطفات في اللف الثانوي أقل من اللف الأولية ، مما يقلل من الجهد. يحتوي اللف الثانوي على اتصالات تؤدي إلى المحطات الثانوية للمحول ، والتي يتم توصيلها بعد ذلك بشبكة التوزيع المحلية. توزيع الجهد المنخفض: من المحطات الثانوية ، يتم توزيع كهرباء الجهد المنخفض على المنازل والشركات. يتم ذلك عادةً من خلال خطوط التوزيع التي تعمل على طول أعمدة المرافق ثم تتفوق على المباني الفردية. يتضمن الجانب الثانوي أيضًا خطًا محايدًا ، والذي يتم تشغيله وغالبًا ما يركض مع خطوط الطاقة. السلامة والعزل: تم تجهيز المحولات بمختلف ميزات السلامة والعزل للحماية من الصدمات الكهربائية والدوائر القصيرة والمخاطر الكهربائية الأخرى. الصمامات وأجهزة الحماية: يتم استخدام الصمامات أو قواطع الدوائر على كل من الجانبين الأساسي والثانوي لحماية المحول والشبكة الكهربائية من الأحمال الزائدة والأخطاء. من المهم أن نلاحظ أن الأسلاك الفعلية لمحول القطب يمكن أن تكون أكثر تعقيدًا وتختلف بناءً على تصميم المحول ومتطلبات النظام الكهربائي واللوائح المحلية. يجب دائمًا تنفيذ تركيب وصيانة وخدمة محولات القطب من قبل المتخصصين في الكهرباء المؤهلين.

س: 14. ما هي الحماية للمحول المثبت على القطب؟

ج: تعد الحماية للمحولات المثبتة على القطب ضرورية لضمان تشغيل آمن وموثوق. تُستخدم آليات وأجهزة الحماية المختلفة للحماية من الأخطاء ، والأحمال الزائدة ، والمخاطر الكهربائية الأخرى. فيما يلي استراتيجيات الحماية الرئيسية: الصمامات: الصمامات هي أشكال الحماية الأساسية. وهي مصممة لتفجير المحول وفصله عن خط الطاقة في حالة وجود حمولة زائدة أو دائرة قصيرة. قواطع الدوائر: تخدم قواطع الدوائر غرضًا مشابهًا للصمامات ولكن يمكن إعادة تعيينه. يقومون تلقائيًا بقطع التيار الكهربائي إذا اكتشفوا خطأ أو تحميلًا زائد. المفقودين المفقودين: حماية المصلحة للارتداد المحول من طفرات الجهد والارتفاع ، وغالبًا ما يكون بسبب ضربات البرق أو زيادة العواصف. إنهم يعملون عن طريق تحويل الجهد الزائد إلى الأرض. التأريض: الأساس المناسب أمر بالغ الأهمية للسلامة. يوفر مسارًا لتيارات الصدع ويساعد على تثبيت الجهد في النظام. عادةً ما يتم عادةً ترتكز حالة المحول ومحول المحول. الحماية الحرارية: تم تجهيز بعض المحولات بأجهزة استشعار حرارية أو شرائط ثنائية المعدنية التي تؤدي إلى إنذار أو تفصل المحول في حالة ارتفاع درجة الحرارة. على مستوى الزيت ومراقبة درجة الحرارة (للمحولات المليئة بالزيت): قد تحتوي هذه المحولات على مقاييس أو أجهزة استشعار لمراقبة مستوى الزيت ودرجة الحرارة. انخفاض مستويات الزيت أو درجات الحرارة المرتفعة يمكن أن تشير إلى مشاكل محتملة. أجهزة تخفيف الضغط (للمحولات المملوءة بالزيت): في حالة الأعطال الداخلية ، تسمح أجهزة تخفيف الضغط بالإفراج الآمن للغازات أو الزيت ، مما يمنع تمزق أو انفجار. الحماية من التيار الزائد: تحمي المرحلات والأجهزة الزائدة من المحولات من الأحمال الزائدة المستدامة التي قد تلحق الضرر بلفاتها. ترحيل Buchholz (للمحولات الكبيرة المليئة بالزيت): تتابع Buchholz هو جهاز حماية من الغازات المستخدمة في المحولات المملوءة بالزيت. يكتشف تراكم الغازات (علامة على خطأ داخلي) ويؤدي إلى إنذار أو يغلق المحول. الميزات المقاومة للعبث: تمنع العبوات والأقفال الوصول غير المصرح به إلى المحول ، مما يقلل من خطر التخريب أو الاتصال العرضي مع الأجزاء الحية. من المهم أن نلاحظ أن متطلبات وأجهزة الحماية المحددة لمحول مثبت على القطب يمكن أن تختلف بناءً على حجمه وتصميمه والنظام الكهربائي الذي يتصدره. تعد الصيانة والتفتيش المنتظمة أيضًا جزءًا مهمًا من استراتيجية حماية المحول ، مما يضمن أن جميع الأجهزة الواقية تعمل بشكل صحيح.

س: 15.

ج: نعم ، يمكن أن تسوء المحولات مع مرور الوقت. مثل أي معدات كهربائية ، فإن المحولات لها عمر محدود ويمكن أن تتدهور بسبب عوامل مختلفة. فيما يلي بعض الأسباب التي تجعل المحولات سيئة مع مرور الوقت: تدهور العزل: العزل في المحولات ، كل من الزيت في المحولات المملوءة بالزيت والعزل الصلب حول اللفات ، يمكن أن ينهار مع مرور الوقت. يمكن تسريع هذا التدهور من خلال عوامل مثل ارتفاع درجة الحرارة ، والحمل الزائد ، والتعرض للأكسجين والرطوبة. الشيخوخة الحرارية: المحولات تولد الحرارة أثناء التشغيل. يمكن أن تتسبب دورات التدفئة والتبريد المتكررة في العمر ، وخاصة مواد العزل ، مما يؤدي إلى انخفاض الأداء أو الفشل. الضغوط الكهربائية: يمكن أن تؤكد الفولتية العالية والتيارات ، وكذلك الدوائر القصيرة والعروض الكهربائية ، على مكونات المحول ، مما يؤدي إلى التدهور التدريجي. التآكل الميكانيكي: المحولات ذات الأجزاء المتحركة ، مثل مغيرات الصنبور ، تخضع للارتداء الميكانيكي. التآكل والعوامل البيئية: يمكن أن يؤثر التآكل الناتج عن الظروف البيئية مثل الرطوبة والملح والتلوث على مكونات المحولات ، وخاصة الأجزاء المعدنية والاتصالات. تلوث الزيت: في المحولات المملوءة بالزيت ، يمكن أن يصبح الزيت ملوثًا بالماء أو الغاز أو الجسيمات بمرور الوقت ، مما يقلل من خصائصه العازلة والتبريد. التشويه التوافقي: في الشبكات الكهربائية الحديثة ذات الأحمال غير الخطية (مثل تلك الموجودة في الأجهزة الإلكترونية ومحركات التردد المتغيرة) ، يمكن أن تسبب التيارات التوافقية في المحولات ، مما يؤدي إلى تسخين إضافي والإجهاد. تقلبات الحمل: يمكن أن يؤدي التحميل الزائد المتكرر أو المستمر إلى تسريع عملية الشيخوخة في المحولات. عيوب التصنيع: على الرغم من أنه أقل شيوعًا بسبب مراقبة الجودة الصارمة ، إلا أن عيوب التصنيع قد تؤدي في بعض الأحيان إلى فشل محول سابق لأوانه. نقص الصيانة: يمكن أن يؤدي الصيانة غير الكافية إلى تراكم القضايا التي تقصر عمر المحول. لزيادة العمر إلى الحد الأقصى وضمان موثوقية المحولات ، فإن الصيانة العادية والمراقبة والاختبار ضرورية. ويشمل ذلك التحقق من سلامة العزل والحفاظ عليه ، وجودة الزيت (في المحولات المملوءة بالزيت) ، والأجزاء الميكانيكية ، وكذلك مراقبة حمل المحول ودرجة الحرارة. عندما يبدأ المحول في إظهار علامات تدهور كبير ، يكون غالبًا أكثر اقتصادا وأكثر أمانًا لاستبداله بدلاً من محاولة إصلاحات واسعة النطاق.

س: 16. متى يجب استبدال المحول؟

ج: يجب استبدال المحول عندما يعرض علامات تدهور كبير أو عدم الكفاءة أو عندما لم يعد يفي بالمتطلبات التشغيلية المطلوبة. فيما يلي المؤشرات والمواقف الرئيسية التي ينصح فيها استبدال المحول: العمر ونهاية الحياة: عادةً ما يكون للمحولات عمر تتراوح بين 25 إلى 40 عامًا. بعد هذا العمر ، هم أكثر عرضة للإخفاقات. إذا كان المحول يقترب أو تجاوز عمره المتوقع ، ففكر في الاستبدال. الإخفاقات والإصلاحات المتكررة: إذا كان المحول يتطلب إصلاحات متكررة أو يعاني من حالات فشل متكررة ، فقد يكون أكثر فعالية من حيث التكلفة وموثوقة لاستبداله بدلاً من الاستمرار في الصيانة المستمرة. انخفاض الكفاءة: قد تعمل المحولات القديمة أو تلك التي تعاني من أضرار مستمرة بشكل أقل كفاءة ، مما يؤدي إلى ارتفاع خسائر الطاقة وتكاليفها. تدهور العزل: إن انهيار العزل الكهربائي داخل المحول هو قضية حرجة يمكن أن تؤدي إلى حالات فشل. يمكن أن يحدد اختبار العزل المتقدم ما إذا كانت سلامة العزل تعرض للخطر. نتائج تحليل الزيت: بالنسبة للمحولات المملوءة بالزيت ، يعد اختبار الزيت العادي أمرًا ضروريًا. إذا كان تحليل الزيت يشير إلى تدهور كبير أو تلوث لا يمكن علاجه بالعلاج ، فقد يكون الاستبدال ضروريًا. قيود السعة: إذا لم يعد بإمكان المحول التعامل مع الحمل المطلوب بسبب زيادة الطلب أو التغييرات في النظام ، فقد يكون الاستبدال بسعة أكثر ملاءمة ضروريًا. الضرر الجسدي: يمكن أن يضمن الضرر الناتج عن العوامل الخارجية مثل الكوارث الطبيعية أو الحوادث أو التآكل الشديد الاستبدال ، خاصة إذا تم اختراق السلامة الهيكلية. الامتثال التنظيمي: قد توفر المحولات الأحدث سلامة بيئية أفضل ، وكفاءة الطاقة ، والامتثال للوائح الحالية. قد يستلزم عدم الامتثال للوائح البديل. التطورات التكنولوجية: قد يجعل التقدم في تكنولوجيا المحولات النماذج القديمة. قد توفر المحولات الأحدث مزايا مثل تحسين الكفاءة ، وانخفاض الخسائر ، وإدارة الحمل الأفضل ، وقدرات المراقبة الذكية. تحليل التكلفة والفوائد: في بعض الأحيان ، قد تفوق تكلفة الصيانة المستمرة وخطر التوقف المحتمل بسبب المحول القديم الاستثمار في وحدة جديدة. من المهم إجراء تحليل شامل لحالة المحول ، والأداء ، وتاريخ الصيانة ، والموثوقية المستقبلية قبل أن تقرر استبداله. يمكن للتشاور مع المهندسين الكهربائيين أو المتخصصين تقديم رؤى وتوصيات قيمة.

س: 17. ما مدى غالبًا تغيير زيت المحولات؟

ج: يعتمد تواتر تغيير زيت المحولات على عدة عوامل ، بما في ذلك نوع المحول وبيئة التشغيل وأنماط الاستخدام ونتائج اختبارات تحليل الزيت العادية. لا يوجد جدول واحد يناسب الجميع ، ولكن فيما يلي بعض الإرشادات العامة: تحليل الزيت المنتظم: يجب اختبار زيت المحولات بانتظام لتقييم جودته وحالته. يمكن أن تكشف هذه الاختبارات عن معلومات حول محتوى الرطوبة ، والحموضة ، والقوة العازلة ، ووجود الغازات المذابة ، والتي تشير إلى أنواع مختلفة من المشكلات المحتملة داخل المحول. فترات التغيير النموذجية: في حالة عدم وجود أي مشكلات محددة ، قد يتم تغيير زيت المحول عادة كل 10 إلى 15 عامًا. ومع ذلك ، هذا هو مبادئ توجيهية عامة للغاية ويمكن أن تختلف اختلافا كبيرا. الصيانة القائمة على الحالة: تتبع العديد من المرافق والصناعات الآن نهج الصيانة القائمة على الحالة. في هذا النهج ، لا يتم تغيير الزيت على أساس فاصل ثابت ، ولكن بناءً على نتائج تحليل الزيت. إذا أظهر التحليل أن الزيت لا يزال في حالة جيدة ، فقد لا يلزم تغييره. علامات التغيير الفوري: إذا كشف تحليل الزيت عن تلوث كبير ، أو انهيار الخواص الكيميائية ، أو الرطوبة المفرطة ، أو غيرها من القضايا الحرجة ، فيجب تغيير الزيت بغض النظر عن تاريخ التغيير الأخير. نوع المحول واستخدامه: يؤثر نوع المحول (الطاقة أو التوزيع أو التخصص) وحمله التشغيلي أيضًا على عدد المرات التي يجب تغيير فيها الزيت. قد تتطلب المحولات تحت الأحمال الثقيلة أو المتقلبة ، أو تلك الموجودة في البيئات القاسية ، تغييرات أكثر تواتراً في الزيت. توصيات الشركة المصنعة: فكر دائمًا في إرشادات الشركة المصنعة للمحولات. أنها توفر توصيات بناء على التصميم والاستخدام المقصود للمحول. الاعتبارات البيئية: في بعض الحالات ، قد تملي الاعتبارات التنظيمية أو البيئية تواتر التغيرات في الزيت أو نوع الزيت المستخدم. من المهم أن نلاحظ أن صيانة زيت المحولات يمكن أن تشمل أيضًا الترشيح ، والتجديد ، وتجديده بدلاً من التغيير الكامل. يمكن لهذه العمليات أن تمدد عمر الزيت وغالبًا ما تكون حلاً أكثر فعالية من حيث التكلفة مقارنة بتغيير كامل للزيت. تعد المراقبة والصيانة المنتظمة مفتاحًا لضمان صحة وكفاءة المحولات على المدى الطويل.

س: 18. ما هو متوسط ​​العمر المتوقع للمحول الحالي؟

ج: يختلف متوسط ​​العمر المتوقع للمحول الحالي (CT) بناءً على عدة عوامل ، بما في ذلك جودته وظروف الاستخدام وممارسات الصيانة والعوامل البيئية. ومع ذلك ، بشكل عام ، يمكن أن تتمتع المحولات الحالية بحياة خدمة طويلة ، وغالبًا ما تتماشى مع عمر المعدات الأساسية التي يتم توصيلها بها. فيما يلي بعض النقاط التي يجب مراعاتها: العمر النموذجي: يمكن أن تستمر المحولات الحالية عادة لعدة عقود. يمكن أن يكون للأشعة المقطعية المصنعة جيدًا والمحافظة عليها بشكل صحيح عمر يتراوح بين 20 إلى 40 عامًا ، وأحيانًا أطول. الجودة والتصميم: يعتمد عمر CT بشكل كبير على جودة موادها وبناءها. محولات عالية الجودة مع تصميمات قوية تميل إلى الاستمرار لفترة أطول. ظروف التشغيل: البيئة التي تعمل فيها التصوير المقطعي تؤثر بشكل كبير على طول العمر. قد يكون لدى CTS في الظروف القاسية (درجات الحرارة القصوى ، الرطوبة العالية ، البيئات المسببة للتآكل ، وما إلى ذلك) عمر منخفض. الحمل الكهربائي: يؤثر الحمل الكهربائي وتكرار تقلبات الحمل أيضًا على العمر. قد تشهد CTS التي تعمل بشكل متكرر عند أو بالقرب من سعة أقصى قدر من التصنيف ، أو تلك التي تخضع لتيارات الدائرة القصيرة العالية المتكررة ، مزيد من التآكل والدموع. الصيانة: يمكن للصيانة المنتظمة ، بما في ذلك عمليات التفتيش والتنظيف والاختبار ، إطالة عمر المحول الحالي. يمكن أن يؤدي إهمال الصيانة إلى فشل مبكر. جودة التثبيت: التثبيت والتكليف المناسب أمران حاسمان. يمكن أن يؤدي التثبيت الخاطئ إلى التدهور المبكرة والفشل. الترقيات والتغييرات التكنولوجية: في بعض الأحيان ، يتم استبدال CTs ليس لأنها فشلت ولكن لأنها أصبحت عفا عليها الزمن تقنيًا أو لم تعد تمتثل للمعايير واللوائح المحدثة. توصيات الشركة المصنعة: توفر الشركات المصنعة غالبًا عمرًا تشغيليًا موصى به بناءً على التصميم والاستخدام المقصود لـ CT. تدهور العزل: بالنسبة إلى CTS ، فإن شيخوخة العزل عامل حاسم. يجب تقييم حالة العزل بشكل دوري لضمان موثوقية وسلامة التصوير المقطعي. باختصار ، في حين أن عمر المحولات الحالية يمكن أن يختلف ، مع الاختيار والتركيب والصيانة المناسبين ، يمكنهم توفير خدمة موثوقة لسنوات عديدة. يعد الاختبار والمراقبة المنتظمين مفتاحًا لتحديد المشكلات المحتملة في وقت مبكر وتمديد عمر التصوير المقطعي.

س: 19. هل تلبس المحولات الكهربائية؟

ج: نعم ، يمكن أن تلبس المحولات الكهربائية بمرور الوقت. على الرغم من تصميمها من أجل المتانة وعمر تشغيلي طويل ، تخضع المحولات لعوامل مختلفة يمكن أن تؤدي إلى البلى ، والتدهور في نهاية المطاف. فيما يلي الأسباب الرئيسية التي تجعل المحولات قد تبلى: تدهور العزل: أحد الأسباب الرئيسية لشيخوخة المحول هو تدهور نظام العزل الخاص به. كل من العزل الصلب (حول اللفات) والعزل السائل (في المحولات المملوءة بالزيت) يمكن أن يتدهور بسبب الشيخوخة الحرارية ، والضغوط الكهربائية ، والعوامل البيئية. الإجهاد الحراري: تولد المحولات الحرارة أثناء التشغيل. يمكن أن تسبب التقلبات في الحمل ودرجة الحرارة المحيطة ركوب الدراجات الحرارية ، مما يؤدي إلى توسع المواد وتقلصها ، مما قد يؤدي بمرور الوقت إلى ضغوط ميكانيكية وتدهور. الإجهاد الكهربائي: يمكن أن تسبب الفولتية العالية والتيارات ، وكذلك الأحداث العابرة مثل الطغات والأخطاء ، الإجهاد الكهربائي ، مما قد يؤدي إلى انهيار العزل أو الأضرار الداخلية الأخرى. التآكل الميكانيكي: المحولات ذات الأجزاء المتحركة ، مثل مغيرات الصنبور ، تخضع للارتداء الميكانيكي. يمكن أن تؤدي العملية المتكررة إلى التعب والفشل. تلوث الزيت: في المحولات المملوءة بالزيت ، يمكن أن يصبح الزيت ملوثًا بالرطوبة والجزيئات والغازات ، مما يقلل من فعاليته كعازل ومبرد. هذا يمكن أن يؤدي إلى زيادة درجات حرارة التشغيل والشيخوخة المتسارعة. العوامل البيئية: التعرض للرطوبة ، والتلوث ، ودرجات الحرارة القصوى ، والظروف البيئية الأخرى يمكن أن يسرع عملية الشيخوخة للمحولات. التآكل: يمكن أن تتآكل مكونات المعادن داخل المحولات ، خاصة في الظروف البيئية القاسية ، والتي تؤثر على كل من السلامة الهيكلية والوظائف الكهربائية. التحميل الزائد: يمكن أن تؤدي عملية ثابتة أعلى من السعة المقدرة إلى توليد الحرارة المفرط والشيخوخة المتسارعة. نقص الصيانة: يمكن أن يؤدي عدم كفاية الصيانة إلى تراكم القضايا ، مما يؤدي إلى تفاقم عملية الشيخوخة. لتمديد عمر المحول وضمان تشغيله الموثوق ، والصيانة المنتظمة ، بما في ذلك عمليات التفتيش والاختبار وتحليل الزيت (للمحولات المملوءة بالزيت) ، أمر ضروري. في النهاية ، ستصل جميع المحولات إلى نقطة يكون فيها الاستبدال أكثر اقتصادا وأكثر أمانًا من الصيانة المستمرة.

س: 20. كم من المبعد من الجدار يجب أن يكون المحول؟

ج: يعتمد التخليص المطلوب بين المحول والجدار على عدة عوامل بما في ذلك نوع المحول وحجمه والحرارة التي يولدها ولوائح السلامة واحتياجات الوصول إلى الصيانة. في حين أن المتطلبات المحددة يمكن أن تختلف بناءً على رموز البناء المحلية والمعايير التي وضعتها منظمات مثل القانون الكهربائي الوطني (NEC) في الولايات المتحدة ، فهناك بعض الإرشادات العامة: تبديد الحرارة والتهوية: تولد المحولات الحرارة أثناء التشغيل ، لذلك يجب توفير مساحة كافية لتبديد الحرارة وتهوية. هذا أمر بالغ الأهمية بشكل خاص للمحولات الكبيرة أو تلك الموجودة في المساحات المغلقة. الوصول إلى الصيانة: يجب السماح بمساحة كافية حول المحول للصيانة والتفتيش الآمن والمريح. ويشمل ذلك مساحة لفتح الأبواب أو الألواح وللموظفين للتنقل حول الوحدة. لوائح السلامة: قد تحدد الرموز والمعايير الكهربائية المحلية الحد الأدنى لمسافات التخليص لأسباب تتعلق بالسلامة ، وتقليل مخاطر الحرائق ، ومنع المخاطر الكهربائية. المحولات المملوءة بالزيت: بالنسبة للمحولات المملوءة بالزيت ، قد تكون هناك حاجة إلى خلوص إضافي لاحتواء تسربات زيتية محتملة وتقليل مخاطر الحرائق. التثبيت الداخلي مقابل التثبيت في الهواء الطلق: يمكن أن تختلف المتطلبات للتركيبات الداخلية والخارجية. قد تحتاج المحولات في الهواء الطلق إلى خلوص أقل من الجدران ولكن سيكون لها اعتبارات تباعد أخرى ، مثل المسافة من الغطاء النباتي والهياكل. توصيات الشركة المصنعة: يرجى الرجوع دائمًا إلى إرشادات تثبيت الشركة المصنعة للمحولات ، لأنها ستوفر متطلبات تصريح محددة بناءً على تصميم وتشغيل المحول. كمبدأ توجيهي عام تقريبي ، يعد إزالة ما لا يقل عن بضعة أقدام (حوالي 1 متر) أمرًا شائعًا بالنسبة للمحولات الأصغر ، ولكن هذا يمكن أن يكون أكثر بكثير بالنسبة للوحدات الكبيرة. للحصول على المتطلبات الدقيقة ولضمان الامتثال لجميع الإرشادات السلامة والتشغيلية ، من المهم استشارة رموز البناء المحلية ومعايير الصناعة ومواصفات الشركة المصنعة للمحولات.

س: 21. ما مدى سلك محول في القطب؟

ج: يتضمن توصيل المحول في قطب الأداة المساعدة سلسلة من الخطوات لضمان خطواتها بأمان لأسفل الكهرباء عالية الجهد من خطوط الطاقة إلى الجهد السفلي المناسب للاستخدام السكني أو التجاري. يجب دائمًا تنفيذ هذه العملية من قبل المهنيين الكهربائيين المؤهلين بسبب المخاطر الكامنة والمعرفة التقنية المطلوبة. فيما يلي نظرة عامة مبسطة على كيفية سلك المحول عادة في قطب: اتصال خط الجهد العالي: يتم توصيل اللف الأساسي للمحول بخطوط الطاقة عالية الجهد. هذه الخطوط عادة ما تكون في الجزء العلوي من عمود الأداة المساعدة. غالبًا ما يتم توصيل سلك التأريض من خط الجهد العالي إلى القطب ثم إلى الأرض ، مما يوفر مسارًا للأخطاء الكهربائية وتثبيت النظام. اللف الأساسي للمحول: يتم توصيل اللف الرئيسي للمحول ، المصمم للتعامل مع جهد الإدخال العالي ، بخط طاقة الجهد العالي. محايد وتأريض: المحول يرتكز على السلامة ولضمان التشغيل السليم. عادة ما يكون الموصل المحايد مرتبطًا بنظام تأريض المحول. عادة ما تكون النقطة المحايدة لللف الأولية ترتكز. يرتبط هذا التأريض أيضًا بقضيب التأريض مدفوعًا إلى الأرض. اللف الثانوي للمحول: لف الانهيار الثانوي ، حيث يتم تنحي الجهد ، له لفائف أقل من الابتدائية. الجهد المنخفض من اللف الثانوي هو ما يتم توزيعه على المنازل والشركات. توزيع الجهد المنخفض: يتم توزيع كهرباء الجهد المنخفض من خلال الأسلاك المتصلة بالمحطات الثانوية للمحول. ثم تتصل هذه الأسلاك بشبكة التوزيع المحلية. يتضمن الجانب الثانوي أيضًا خطًا محايدًا ، يتم تشغيله ويعمل مع خطوط الطاقة. الصمامات وأجهزة الحماية: غالبًا ما تستخدم الصمامات أو قواطع الدوائر على كل من الجانبين الأساسي والثانوي للمحول لحمايته من الأحمال الزائدة والأخطاء. السلامة والعزل: تم تجهيز المحولات بمختلف ميزات السلامة والعزل للحماية من الصدمات الكهربائية والدوائر القصيرة. قطرات الخدمة: من المحول ، تمتد قطرات الخدمة الفردية إلى أسفل القطب للاتصال بمدخل خدمة كل عميل لتسليم الكهرباء. هذا وصف عام ، ويمكن أن تختلف تكوينات الأسلاك الفعلية بناءً على نوع المحول ومتطلبات النظام الكهربائي المحدد واللوائح المحلية. تعد الصيانة والتفتيش المنتظم من قبل المهنيين ضرورية لضمان طول طول وسلامة المحولات المثبتة على القطب.

س: 22. هل محولات مثبتة في القطب آمنة؟

ج: المحولات المثبتة على القطب آمنة بشكل عام عند تثبيتها بشكل صحيح وصيانتها واستخدامها وفقًا للمعايير واللوائح الكهربائية ذات الصلة. هذه المحولات هي مكون قياسي وضروري لأنظمة التوزيع الكهربائي في جميع أنحاء العالم ، ويتم ضمان سلامتها من خلال العديد من التدابير: التصميم والبناء: تم تصميمها لتحمل الظروف البيئية مثل الرياح والأمطار والتغيرات في درجة الحرارة. تم تصميم حاوياتها لحماية المكونات الداخلية وتقليل خطر التلامس الكهربائي. التأريض والحماية: يتم تأريض المحولات لمنع الصدمة الكهربائية وتوجيه أي تيارات صدع بأمان إلى الأرض. يتم استخدام أجهزة الحماية مثل الصمامات وقواطع الدوائر لمنع التحميل الزائد والأضرار. الرموز والمعايير الكهربائية: يخضع تركيبها وتشغيلها للرموز والمعايير الكهربائية الصارمة ، والتي تملي جوانب مثل التخليص من المباني ومتطلبات التأريض لضمان السلامة. الصيانة المنتظمة: تقوم شركات المرافق بإجراء عمليات تفتيش وصيانة منتظمة لضمان عمل المحولات بأمان وكفاءة. موقع التثبيت الآمن: يتم تثبيته على أعمدة ، وعادة ما تكون هذه المحولات سهلة الوصول إلى عامة الناس ، مما يقلل من خطر الاتصال العرضي. حماية الطفرة: غالبًا ما يتم استخدام المضيقات للارتداد لحماية المحولات من مسامير الجهد ، وخاصة تلك الناتجة عن ضربات البرق ، مما يعزز السلامة. الوعي العام: توفر شركات المرافق عادةً إرشادات وتعليم حول الاستخدام الآمن للمعدات الكهربائية ، بما في ذلك أهمية الحفاظ على مسافة آمنة من المحولات. في حين أن المحولات المثبتة على القطب مصممة مع وضع السلامة في الاعتبار ، فإنها لا تزال أجهزة كهربائية تحمل الفولتية العالية. من المهم أن يمارس الجمهور الحذر وتجنب الاقتراب أو العبث بالمعدات الكهربائية. في حالة وجود أي قضايا مثل الشرر أو تسرب النفط أو الضوضاء غير العادية من محول ، يجب إبلاغ شركة المرافق على الفور. باختصار ، تكون المحولات المثبتة على القطب آمنة عندما يتم اتباع تدابير السلامة واللوائح وممارسات الصيانة المناسبة. ومع ذلك ، يجب دائمًا معاملتهم باحترام بسبب الفولتية العالية التي يحملونها.

س: 23. كم يستغرق وضع محول على عمود؟

ج: يمكن أن يختلف الوقت الذي يستغرقه وضع محول على القطب اعتمادًا على عدة عوامل ، بما في ذلك حجم ووزن المحول ، ومهارة وتجربة أداء التثبيت ، والظروف المحددة لموقع التثبيت. ومع ذلك ، فإن عملية التثبيت النموذجية لمحول مثبت على القطب يمكن أن تستغرق عدة ساعات لإكمالها. فيما يلي بعض الخطوات العامة المتورطة في وضع محول على القطب: إعداد الموقع: سيحتاج الطاقم أولاً إلى إعداد موقع التثبيت. قد يتضمن ذلك حفر ثقب للقطب ، وضمان ترسيخ القطب بشكل آمن ، والتأكد من أن المنطقة خالية من أي عقبات. تثبيت القطب: إذا تم تثبيت عمود جديد أو استبدال قطب موجود ، فقد تستغرق هذه الخطوة بعض الوقت. يتضمن حفر ثقب ، ووضع القطب ، وتأمينه في مكانه. تصاعد المحول: بمجرد أن يكون القطب في مكانه ، يمكن تركيب المحول عليه. تتضمن هذه العملية رفع المحول وتوصيله بشكل آمن بالقطب باستخدام الأجهزة المناسبة. الاتصالات الكهربائية: بعد أن يكون المحول في وضع ، يجب إجراء اتصالات كهربائية. يتضمن ذلك توصيل المحول بخطوط الطاقة وضمان معزول وتأمين جميع الاتصالات الكهربائية بشكل صحيح. الاختبار والتفتيش: بمجرد تثبيت المحول وتوصيله ، يجب اختباره للتأكد من أنه يعمل بشكل صحيح. قد يتضمن ذلك التحقق من مستويات الجهد ، وإجراء اختبارات العزل ، وغيرها من عمليات الفحص التشخيصية. التفتيش النهائي والتنظيف: بعد اكتمال التثبيت ويتم اختبار المحول ويعتبر التشغيل ، يتم إجراء فحص نهائي لضمان أن يكون كل شيء في حالة جيدة. سيتم أيضًا تنفيذ أي تنظيف ضروري واستعادة موقع التثبيت. يمكن أن يختلف الوقت الذي يستغرقه إكمال هذه الخطوات اعتمادًا على تعقيد التثبيت وحجم المحول وخبرة طاقم التثبيت. ليس من غير المألوف أن تستغرق العملية بأكملها عدة ساعات أو حتى لفترة أطول لتركيبات أكثر تعقيدًا. بالإضافة إلى ذلك ، يمكن أن تؤثر الظروف الجوية والعوامل الأخرى غير المتوقعة على الجدول الزمني للتركيب. من المهم أن يتم تنفيذ التثبيت من قبل المهنيين المدربين لضمان السلامة والعمل المناسب للمحول.

س: 24. كم يكلف وضع محول على عمود؟

ج: يمكن أن تختلف تكلفة وضع المحول على القطب على نطاق واسع اعتمادًا على عدة عوامل ، بما في ذلك: نوع المحول والحجم: تعتمد التكلفة على نوع وحجم المحول الذي يتم تثبيته. المحولات الأكبر ذات السعة الأعلى تكلفة بشكل عام أكثر من أصغر حجم. الموقع: يمكن أن تختلف التكلفة بناءً على موقع التثبيت. قد تتطلب المناطق البعيدة أو التي يصعب الوصول إليها المزيد من الجهد والموارد ، مما يؤدي إلى ارتفاع التكاليف. تكاليف العمالة: يمكن أن تكون تكاليف العمالة جزءًا كبيرًا من التكلفة الإجمالية. يمكن أن يؤثر مستوى مهارة العمال ، وأجورهم ، والوقت اللازم للتركيب على التكلفة الإجمالية. المعدات والمواد: تكلفة المحول نفسه هي مجرد مكون واحد. المواد والمعدات الأخرى ، مثل الأعمدة والأسلاك والأجهزة ومعدات السلامة ، هي أيضًا عوامل. التصريح والتكاليف التنظيمية: اعتمادًا على اللوائح المحلية ، قد تكون هناك حاجة إلى تصاريح وعمليات تفتيش للتثبيت ، والتي يمكن أن تضيف إلى التكلفة. تكاليف النقل: إذا كان من الضروري نقل المحول إلى موقع التثبيت ، فقد تكون تكاليف النقل عاملاً ، خاصة بالنسبة للمحولات الكبيرة والثقيلة. التكاليف المتنوعة: قد تكون هناك تكاليف متنوعة أخرى مثل إعداد الموقع وتنظيف الموقع وأي مصاريف غير متوقعة تنشأ أثناء عملية التثبيت. المقاول أو شركة الأداة المساعدة: ما إذا كان يتم تنفيذ التثبيت من قبل شركة مرافق أو مقاول خاص يمكن أن يؤثر أيضًا على التكلفة ، حيث قد تختلف أسعار المقاول. بالنظر إلى هذه المتغيرات ، من الصعب توفير تكلفة محددة دون معرفة التفاصيل الدقيقة لمشروع التثبيت. للحصول على تقدير دقيق ، من الأفضل الاتصال بشركات المرافق المحلية أو المقاولين الكهربائيين وتزويدهم بتفاصيل محددة لمشروعك. يمكنهم تقييم المتطلبات وتزويدك بتقدير التكلفة بناءً على ظروفك الفريدة. ضع في اعتبارك أن الأسعار يمكن أن تختلف اختلافًا كبيرًا من منطقة إلى أخرى واعتمادًا على ظروف السوق المحلية.

س: 25. ما هو الحد الأقصى لسعة محول مثبت على القطب؟

ج: يمكن أن تختلف سعة الحد الأقصى لمحول مثبت على القطب اعتمادًا على عدة عوامل ، بما في ذلك نوع المحول وتصميمه والتطبيق المحدد. تُستخدم المحولات المثبتة على القطب بشكل شائع للتطبيقات التجارية السكنية والصغيرة ، وعادة ما تتراوح طاقتها من بضعة كيلو فولت أمبير (كيلوفولت أمبير) إلى بضع مئات من كيلو فولت أمبير. فيما يلي بعض نطاقات السعة الشائعة للمحولات المثبتة على القطب: المحولات ذات الطور الواحد: غالبًا ما يكون للمحولات المثبتة على القطب أحادي الطور قدرات تتراوح من 5 كيلو فولت أمبير إلى 25 كيلو فولت أمبير. تستخدم هذه المحولات بشكل شائع لاتصالات الخدمة التجارية السكنية والصغيرة. محولات ثلاثية المراحل: يمكن أن يكون للمحولات التي تحتوي على ثلاث مراحل مثبتة على القطب قدرات تتراوح من 15 كيلو فولت أمبير إلى 500 كيلو فولت أمبير أو أكثر. يتم استخدامها للتطبيقات التجارية والصناعية الأكبر. المحولات المثبتة على وسادة: في بعض الحالات ، يمكن استخدام محولات أكبر مثبتة على الوسادة للتطبيقات التجارية والصناعية متوسطة الحجم. يمكن أن يكون لهذه المحولات قدرات تتراوح من بضع مئات من كيلو فولت أمبير إلى عدة آلاف من كيلو فولت أمبير. من المهم أن نلاحظ أنه ينبغي اختيار سعة المحول بناءً على متطلبات الحمل الكهربائي في المنطقة التي تخدمها. تم تصميم المحولات لمطابقة الحمل المتوقع ، واختيار السعة المناسبة أمر بالغ الأهمية لضمان توزيع كهربائي آمن وفعال. عادة ما يشار إلى القدرة الفعلية للمحول المثبت على القطب على لوحة المسماء ، والتي توفر معلومات حول قدرتها المقدرة ، وتصنيف الجهد ، والمقاومة ، وغيرها من المواصفات المهمة. عند التخطيط لنظام توزيع كهربائي أو عند استبدال محول ، من الضروري العمل مع المهندسين الكهربائيين أو محترفي المرافق لتحديد سعة المحول الصحيحة للتطبيق المحدد. يمكن أن يؤدي تحجيم المحول بشكل كبير أو إلى حد ما إلى عدم كفاءة التشغيل وقضايا السلامة المحتملة.

س: 26. ما هو الغرض من محول على عمود كهربائي؟

ج: يقدم محول على عمود كهربائي عدة وظائف حاسمة في توزيع الطاقة الكهربائية: تحول الجهد: إن أهم وظيفة لمحول مثبت على القطب هي التنزه في الكهرباء عالية الجهد من خطوط الطاقة إلى جهد أقل مناسبة للاستخدام في المنازل والشركات. الكهرباء المنقولة على مسافات طويلة تكون في جهد عالي لتقليل فقدان الطاقة. ومع ذلك ، فإن هذا الجهد العالي خطير للغاية بالنسبة للاستخدام المباشر في الإعدادات السكنية أو التجارية ، لذلك تقلل المحولات إلى مستويات أكثر أمانًا وقابلة للاستخدام. العزلة: توفر المحولات العزلة الكهربائية بين خطوط نقل الجهد العالي وخطوط توزيع الجهد المنخفض. تعتبر هذه العزلة أمرًا بالغ الأهمية للسلامة وتساعد على ضمان عدم تأثير أي أخطاء أو مشكلات في نظام النقل بشكل مباشر على الأنظمة الكهربائية للمستهلك. التعديل الحالي: عن طريق ضبط الجهد ، يقوم المحولات أيضًا بضبط التيار بشكل غير مباشر. الجهد السفلي يعني أن تيارًا أعلى متاح عند الناتج ، وهو أمر ضروري لتشغيل مختلف الأجهزة والأجهزة الكهربائية في المباني. السلامة والكفاءة: تسهم المحولات في السلامة الكلية وكفاءة الشبكة الكهربائية. وهي تضمن أن يتم تسليم الكهرباء في شكل آمن للاستخدام ، مع تقليل فقدان الطاقة أيضًا أثناء الإرسال والتوزيع. باختصار ، تلعب المحولات على القطبين الكهربائيين دورًا حيويًا في جعل الكهرباء عالية الجهد من خطوط الطاقة آمنة وقابلة للاستخدام للتطبيقات اليومية في المباني السكنية والتجارية.

س: 27. كيف كثير من KVA محول مثبت على القطب؟

ج: يمكن أن تختلف قدرة محول مثبت على القطب ، المقاسة في Kilovolt-Amperes (KVA) ، اعتمادًا على متطلبات المنطقة التي تخدمها. تتراوح الأحجام الشائعة للاستخدام التجاري السكني والخفيف عادةً من: محولات صغيرة: 10 إلى 50 كيلو فولت أمبير - غالبًا ما تستخدم في المناطق السكنية ، حيث يكون الطلب الكهربائي منخفضًا نسبيًا. محولات متوسطة الحجم: من 50 إلى 250 كيلو فولت أمبير - مناسبة للمناطق السكنية الأكبر أو التطبيقات التجارية الصغيرة إلى المتوسطة. محولات كبيرة: من 250 إلى 500 كيلو فولت أمبير أو أكثر - يتم استخدامها في المناطق الصناعية أو لمجمعات تجارية كبيرة حيث يكون الطلب على الكهرباء أعلى بكثير. يتم اختيار الحجم المحدد للمحول بناءً على متطلبات الحمل الكهربائي في المنطقة التي يهدف إلى الخدمة. ويشمل ذلك عدد المنازل أو الشركات ، وأنواع الأجهزة الكهربائية والآلات المستخدمة ، وأنماط استخدام الكهرباء الذروة. تقوم شركات المرافق بحساب هذه الاحتياجات بعناية لضمان قدرة المحول بما فيه الكفاية دون أن تكون كبيرة بشكل مفرط ، وموازنة الكفاءة والتكلفة.

س: 28. ما هو الجهد الأساسي لمحول مثبت على القطب؟

ج: يمكن أن يختلف الجهد الأساسي لمحول مثبت على القطب ، وهو الجهد على جانب الإدخال ، بشكل كبير اعتمادًا على الشبكة الكهربائية المحلية والمتطلبات المحددة للمنطقة التي تخدمها. ومع ذلك ، فإن بعض الفولتية الأولية النموذجية للمحولات المثبتة على القطب هي: في المناطق الحضرية والضواحي: يمكن أن تكون الفولتية الأولية المشتركة في حدود 4 ، 000 فولت (4 كيلو فولت) إلى 35 ، 000 فولت (35 كيلو فولت). القيم الأكثر نموذجية في هذا النطاق هي 7200 و 12 و 000 و 13،800 فولت. في المناطق الريفية: قد يكون الجهد الأساسي أعلى بسبب مسافات أطول بين مصدر الطاقة والمستهلكين. ليس من غير المألوف رؤية الفولتية الأولية حوالي 25 ، 000 فولت (25 كيلو فولت) أو أكثر. المجالات الصناعية أو المتخصصة: بالنسبة للمناطق ذات الاحتياجات الصناعية المحددة ، قد يكون الجهد الأساسي مختلفًا ، مصممًا على متطلبات العمليات الصناعية أو المعدات المستخدمة. هذه الفولتية موحدة إلى حد ما ولكن يمكن أن تختلف حسب البلد والمنطقة وتصميم الشبكة الكهربائية المحلية. الجهد المختار هو توازن بين الحاجة إلى انتقال فعال لمسافات طويلة (لصالح الفولتية العالية) والعمليات العملية لاعتبارات التوزيع والسلامة المحلية (والتي يمكن أن تحد من الحد الأقصى للجهد المستخدم).

س: 29. هل عادة ما يتم تثبيت محول على عمود أو طهارة؟

ج: يمكن تركيب المحولات إما على أعمدة أو على الأجزاء (وسادات المستوى الأرضي) ، ويعتمد الاختيار بين هذين الخيارين على عوامل مختلفة: المحولات المثبتة على القطب: يتم استخدامها عادة في المناطق السكنية ، وخاصة في الإعدادات الضواحي أو الريفية. يوفر محولات التثبيت على الأعمدة مساحة على الأرض ويمكن أن تكون أكثر فعالية من حيث التكلفة في المناطق التي تكون فيها العقارات قسطًا. كما أنه يساعد في إبقاء المحول بعيدًا عن وصول الجمهور العام ، وإضافة طبقة من الأمان. ومع ذلك ، عادة ما يكون للمحولات المثبتة على القطب سعة أصغر (عادة ما تصل إلى 500 كيلو فولت أمبير) وتستخدم حيث يكون الطلب الكهربائي أقل نسبيًا. محولات مثبتة على وسادة (PLINTH): غالبًا ما توجد في المناطق التجارية والصناعية ، وكذلك في الأحياء السكنية الحضرية حيث يكون توزيع الطاقة تحت الأرض شائعًا. عادةً ما تكون المحولات المثبتة على وسادة أكبر في الحجم وسعة أكثر من تلك المثبتة على القطب وهي مناسبة لمتطلبات الحمل الأعلى. يتم وضعها على وسادة خرسانية على الأرض وغالبًا ما يتم إرفاقها في خزائن معدنية مقاومة للعبث. هذه المحولات أسهل في الحفاظ عليها وتفقدها حيث يمكن الوصول إليها على مستوى الأرض. يتأثر الاختيار بين المحولات المثبتة على القطب والمثبتة على وسادة بعوامل مثل المساحة المتاحة ، ومتطلبات الحمل الكهربائي ، والاعتبارات الجمالية (وخاصة في المناطق الحضرية) ، ولوائح السلامة. تتخذ شركات المرافق هذه القرارات بناءً على تقييم دقيق لهذه العوامل.

س: 30. ما هي متطلبات تثبيت المحول؟

ج: إن تركيب المحول ، سواء كان مثبتًا على القطب أو مثبت عليه وسادة ، يتضمن العديد من المتطلبات الرئيسية لضمان السلامة والوظائف والامتثال للوائح. فيما يلي بعض المتطلبات العامة: اختيار الموقع والتحضير: يجب اختيار الموقع بعناية لضمان السلامة وسهولة الوصول والحد الأدنى من التأثير البيئي. بالنسبة للمحولات المثبتة على القطب ، يلزم وجود عمود مناسب في موقع استراتيجي. بالنسبة للمحولات المثبتة على وسادة ، هناك حاجة إلى مستوى سطح أرض مستقر للوسادة الخرسانية. التخليص الكهربائي: التخليص الكافي من المباني والأشجار والهياكل الأخرى ضرورية لمنع المخاطر الكهربائية وضمان السلامة. لوائح السلامة: الامتثال لمعايير ولوائح السلامة المحلية والوطنية والمخصصة للصناعة أمر ضروري. وهذا يشمل التأريض المناسب ، والاعتبارات البيئية ، والالتزام بالرموز الكهربائية. سعة الحمل والتغييرات: يجب أن يكون المحول بحجم مناسب للحمل الكهربائي الذي سيخدمه. يتضمن ذلك حساب إجمالي الحمل المتوقع واختيار محول بسعة مناسبة. الوصول إلى الصيانة: يجب توفير مساحة كافية حول المحول للصيانة والتفتيش الآمنة والسهلة. التبريد والتهوية: يولد المحولات الحرارة ، لذلك من الضروري التبريد والتهوية الكافية لمنع ارتفاع درجة الحرارة ، خاصة بالنسبة للمحولات الكبيرة أو المثبتة على وسادة. الحماية من الطقس والتخريب: يجب حماية المحولات من العناصر البيئية والتخريب المحتمل. هذا مهم بشكل خاص للتركيبات على مستوى الأرض. الاتصال الصحيح والتكامل: يجب دمج المحول بشكل صحيح في الشبكة الكهربائية ، مع وجود اتصالات مناسبة لكل من جانب الجهد العالي والجهد الثانوي الثانوي. اعتبارات الضوضاء: في المناطق السكنية ، يجب أن يكون مستوى الضوضاء للمحول ضمن حدود مقبولة لتجنب الاضطرابات للسكان القريبين. تخطيط الطوارئ: يجب أن تكون التدابير في مكانها للتعامل مع حالات الطوارئ ، مثل فشل المحولات ، أو التسريبات (في حالة المحولات المملوءة بالزيت) ، أو غيرها من المخاطر. قد يكون لكل من هذه المتطلبات مواصفات أكثر تفصيلاً اعتمادًا على القوانين المحلية والظروف البيئية والتطبيق المحدد للمحول. بالإضافة إلى ذلك ، غالبًا ما يكون لدى شركات المرافق مجموعة من المعايير والممارسات التي تتماشى مع المتطلبات التنظيمية أو تتجاوزها. للتفاصيل ، يرجى الاتصال بفريق Yawei Professional.

 

الوسم : محولات مثبتة على القطب ، مصنّعون محولات محمولة في الصين ، المصنع ، المصنع, محول القطب للمناطق الثلجية, محول القطب للظروف القاسية, محول القطب للمناطق المعرضة للبرق, محول جبل القطب, محول القطب من النوع الجاف, محول القطب لمناطق القطب الجنوبي